720 HAZELWOOD

Basic Information

List Status
Active
Property Type
Residential
Last Updated
MLS Listing Updated
Created
Address

720 HAZELWOOD
HAINES CITY, FL 33844
United States

Current Price
$335,000.00
Square Feet
1853
Price Per Square Foot
$180.79
List Office Name
TAYLOR MORRISON REALTY OF FLORIDA INC
List Agent Full Name
Michelle Campbell
Subdivision Name
MARION CREEK

Interior Information

Appliances
Dishwasher, Disposal, Dryer, Microwave, Range, Refrigerator, Washer
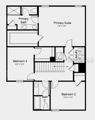
Bedrooms
3
Bathrooms
3
Bathrooms Full
2
Bathrooms Half
1
Cooling
Central Air
Flooring
Carpet, Ceramic Tile
Heating
Electric
Interior Features
Walk-In Closet(s), Window Treatments
Pet Restrictions
See Sales agent for restrictions
Utilities
BB/HS Internet Available, Cable Available, Electricity Available, Public, Water Available

Exterior Information

PropertySubType
Single Family Residence
Construction Materials
Block
Exterior Features
Irrigation System, Sliding Doors
Foundation Details
Slab
Lot Size Acres
0.11
Lot Size Square Feet
4800
Lot Features
Greenbelt
Roof
Shingle

Additional Information

Community Features
Community Mailbox, Irrigation-Reclaimed Water, Playground, Pool, Sidewalks
Country
US
County / Parish
Polk
Postal Code
33844
Street Name
HAZELWOOD
Street Number
720
Street Suffix
COURT
Tax Year
2025
Total Acreage
0 to less than 1/4
Year Built
2025

Financial and Legal Information

Association Fee Frequency
Monthly
Association Fee Includes
Community Pool, Maintenance Grounds, Pool Maintenance
Association Fee Requirement
Required
Association Fee
95
Flood Zone Code
X
List Price
$335000.00
Listing Contract Date
December 12, 2025
Monthly HOA Amount
95
Original List Price
335000
Parcel Number
282719933752001850
Pets Allowed
Yes
Special Listing Conditions
None
Tax Book Number
205/1-9
Tax Lot
185
Zoning
RES
Tax Legal Description
MARION CREEK ESTATES PHASE 3 PB 207 PGS 29-30 LOT 185

Learn More About This Property

CAPTCHA
"